产品导航
Product navigation
当前位置:首页 > 提升机图纸 > 2040Z型提升机外形图纸
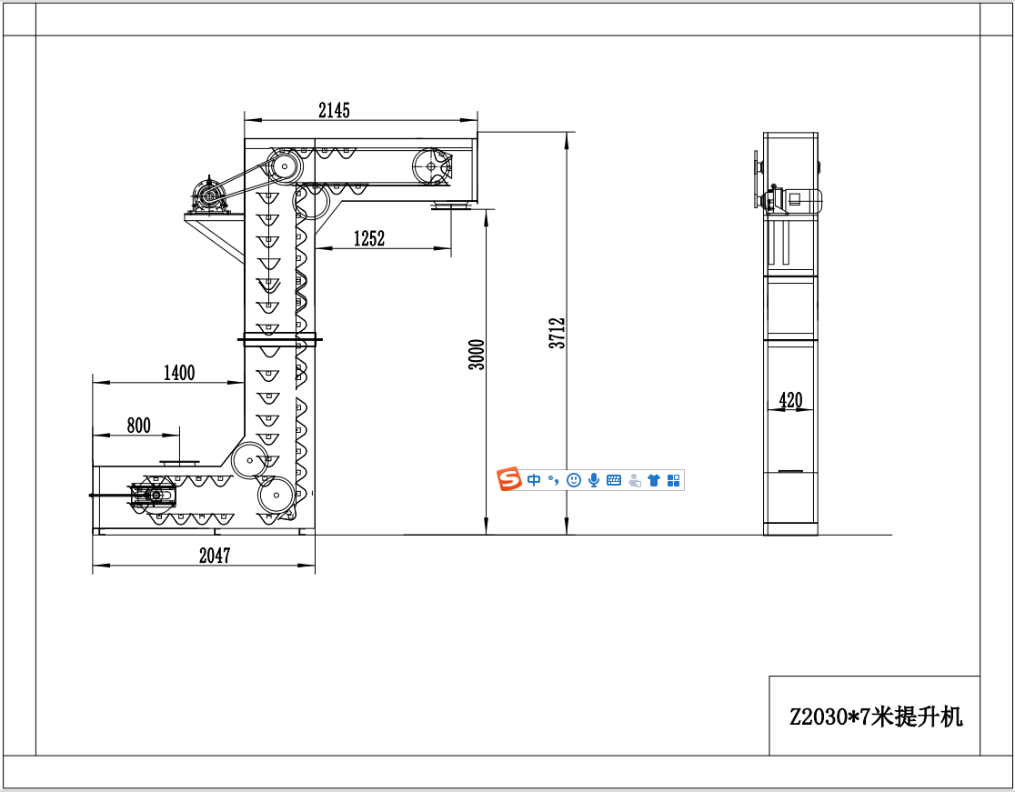
2040Z型提升机外形图纸
发布人:新乡天太斗式提升机厂家 发布时间:2021-04-29
2040Z型提升机系我公司为新疆**能源科技股份有限公司所设计,该Z型提升机参数如下:
华信电机:5.5kw
山东淄博ZQ350减速机
轴承:F312
斗厚:2.75mm
箱体:3.25mm
轴承:6312瓦座轴承

版权说明:如非注明,本站文章均为新乡天太斗式提升机厂家原创,转载请注明出处和附带2040Z型提升机外形图纸本文链接。
下一篇:斗式提升机防倒转装置问题探讨

